PescaraPescara
Quotidiano di Informazione, Annunci e Affari
Home
Attualità
Cinema&Teatro
Libri
Viaggi
Tendenze
Miss & Mister
Cronaca
Cultura
Curiosità
Salute
Sport
Tempo Libero
Supplementi
Annunci
Tv
Contatti
Redazione
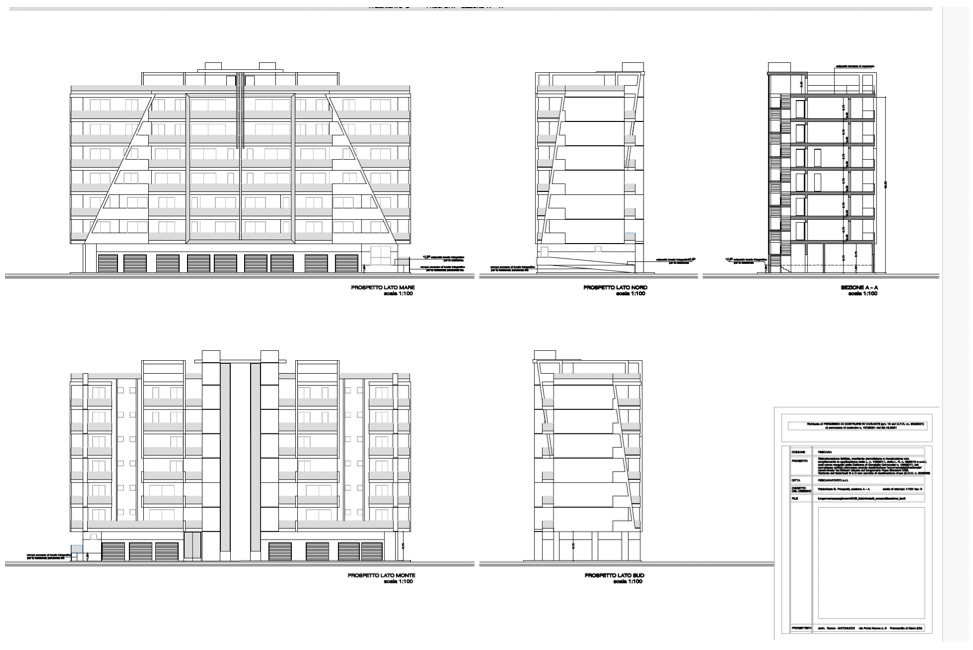
stralcio 2
Posted By:
Paolo
15 dicembre 2025
Articolo offerto da:
Previous image
Next image